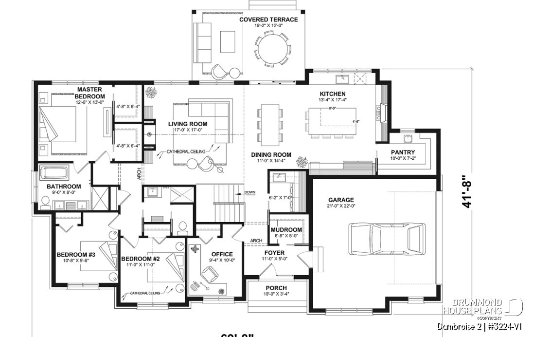
The Dambroise 2 (#3224-V1) is a single-story house plan with double garage that stands out with its modern rustic style and exceptional natural light. With 2,016 sq. ft. on the main floor and a basement of equal size, this model offers outstanding flexibility. Before choosing a house plan, it’s essential to carefully evaluate your lot and your needs.
👉 Learn how to choose the right lot for your house to make the best decision from the start.
Bright single-story house plan with double garage and open-concept living space
One of the main strengths of this single-story house plan with double garage is its remarkable natural light. Thanks to abundant rear windows, natural light fills the main living areas. As a result, the kitchen, dining room and living room feel warm and inviting. In addition, the cathedral ceiling in the living room enhances the sense of space. The 9-foot ceilings throughout the main floor also add comfort and flow.
A kitchen designed for gathering
The kitchen in this single-story house plan with double garage is designed to bring people together. Its large island, seating up to 6 people, quickly becomes the heart of daily life. Moreover, the back kitchen-style pantry offers generous storage and functionality. As a result, you enjoy a clean, organized and highly practical space.
👉 View the full Dambroise 2 (#3224-V1) floor plans and details

Spaces designed for real life
This modern rustic single house plan with double garage offers a layout that simplifies everyday living. Notably, both the front entry and garage entry lead to a spacious mudroom. In addition, a closed office provides a quiet and functional workspace. The main floor laundry room adds everyday convenience. Finally, built-in cabinetry in the living room enhances both storage and style.
A comfortable and well-designed primary suite
The primary bedroom, located on the main floor, offers a private and functional retreat. It includes two separate walk-in closets for optimal organization. The ensuite bathroom features a freestanding tub, separate shower and double vanity. Two additional bedrooms complete this level and share a bathroom.
👉 Explore more house plans with a master suite on the main floor and find the perfect layout for your lifestyle.
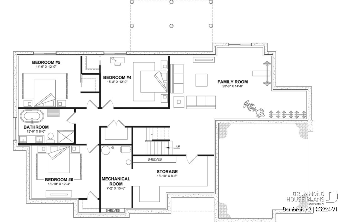
A basement layout that adapts to your needs
The unfinished basement offers an additional 2,016 sq. ft. to customize. As a result, this house plan with double garage and basement easily adapts to your lifestyle. The optional finished layout allows for up to 3 additional bedrooms. This brings the total to up to 6 bedrooms in the home. In addition, you benefit from a large family room, a home gym area and a full bathroom.

A home designed for your lot
The side double garage offers excellent flexibility for various lot configurations. However, it can also be converted to a front-facing garage if needed. The 19′ x 12′ rear terrace extends your living space outdoors.
👉 Browse our collection of house plans with covered rear terraces

A customizable house plan to fit your needs
Even though this single-story house plan is already complete, it can be fully customized. At Drummond House Plans, all house plans can be modified to match your project.
👉 Building in Ontario? Learn what BCIN certification means and why it’s required for your house plans.
👉 For example, you can adjust room layouts, dimensions or exterior design. Get your free estimate to customize the Dambroise 2 (#3224-V1) today!
If your project requires something unique, explore our custom house plan online service. With our network of 30 regional offices, you benefit from local and personalized support. As a result, you are guided from concept to construction.
Similar home styles to consider
If you like this single-storyhouse plan with double garage, you may also like these popular styles.
- Modern farmhouse homes with warm, natural materials
- Scandinavian homes known for light and simplicity
- Contemporary homes with bold volumes and large windows
- Single story house plans valued for accessibility and comfort
However, the best choice always depends on your lot, your budget and your lifestyle.
Who is this house plan for?
This single-story house plan with double garage is ideal for:
- Families looking for a bright and functional home
- Buyers wanting up to 6 bedrooms
- Modern rustic design enthusiasts
- Remote workers needing a dedicated office
- Suburban or nature-based projects
✅ FAQ – Single-story house plan with double garage Dambroise 2 (#3224-V1)
How many bedrooms can this plan offer?
Up to 6 bedrooms with the optional finished basement.
Can this house plan be modified?
Yes, this plan can be fully customized to suit your needs.
Can the garage be repositioned?
Yes, the side garage can be converted to a front-facing layout.
Is this plan suitable for all lot types?
It fits many lots, but a preliminary analysis is recommended.
Is this plan suitable for families?
Yes, it offers flexible, functional and well-designed spaces.
Why choose this single-story house plan with double garage?
The Dambroise 2 (#3224-V1) combines design, natural light and long-term flexibility. In addition, it adapts easily to your current and future needs. As a result, it is an excellent choice for a well-planned and lasting project.
However, every project is unique. That’s why this single-story house plan with double garage can be fully customized to fit your lifestyle. Whether you want to adjust dimensions, modify the layout or personalize the exterior, our team can adapt the Dambroise 2 (#3224-V1) to meet your specific needs.
With our network of 30 regional offices, you benefit from personalized guidance and professional support at every stage of your project. From the first idea to the final plans, our team is here to help you move forward with confidence.
👉 Explore the Dambroise 2 (#3224-V1) and request your free estimate today.
Looking for something more personalized?
👉 Have something different in mind? Design your custom house plan online and get your free estimate today.
