The Nordic Haven house plan (#3978) features clean lines and a soft Scandinavian aesthetic. This Modern Scandinavian House Plan blends simplicity, warmth, and everyday functionality. The main floor offers 1,329 sq.ft., with an unfinished basement of the same size (optional finished basement available). This layout delivers impressive efficiency for a compact and welcoming home. The mix of materials and colors adds accessible refinement while keeping a warm, inviting feel. The plan works perfectly as a primary residence or a modern cabin.

Drummond House Plans Sherbrooke Office, Designer of the Nordic Haven Plan (#3978)
Located in Quebec’s Eastern Townships, the Drummond House Plans Sherbrooke office is the original designer of the Nordic Haven (plan #3978). The team is recognized for its thoughtful approach, creating designs that respond to today’s lifestyles while respecting regional construction realities. Backed by a network of 30 Drummond House Plans offices across Quebec, Ontario and New Brunswick, the Sherbrooke office combines local expertise with the strength of a well-established organization. This collaborative structure allows clients and builders to benefit from personalized guidance, technical precision, and adaptable solutions for custom home designs, cottage projects, and renovation plans.
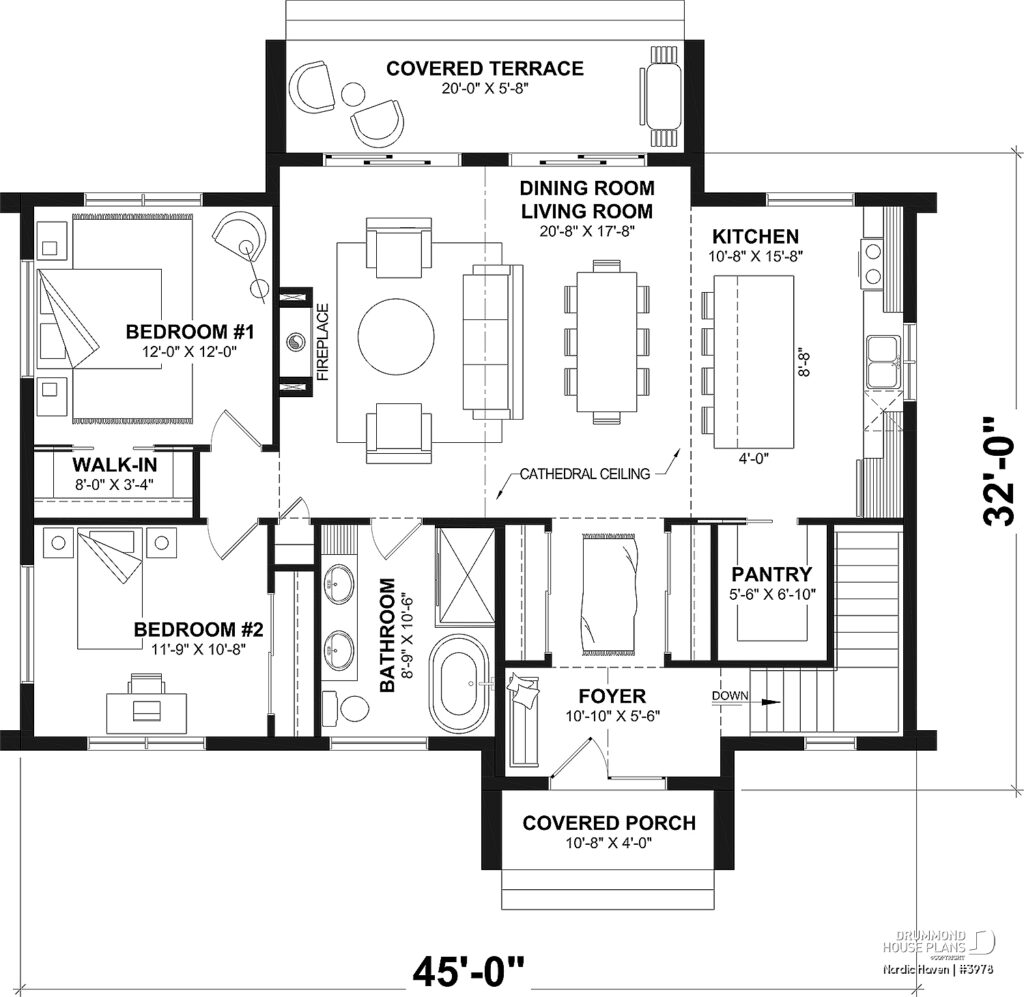
Bright Open-Concept Layout and Striking Cathedral Ceilings
The main floor includes a generous open-concept layout. It supports family life and weekend entertaining with ease. Large windows and two double patio doors fill the kitchen, dining area, and living room with natural light. Cathedral ceilings in the entry, kitchen, and living room expand the space and create a dramatic visual effect. These heights deliver the airy, uplifting atmosphere often seen in high-end Scandinavian homes.
Functional Kitchen, Abundant Storage, and a Cozy Central Fireplace
The front entry of this Modern Scandinavian home is open and practical, offering two large closets and a built-in bench. A kitchen stands at the center of the plan with a large island for cooking and conversation. A walk-in pantry adds valuable storage for busy families and last-minute gatherings. The dining room flows into the living room, where a central fireplace brings year-round warmth. This feature remains visible from all main living areas.
Have a look at more Modern Scandinavian Homes here!

Modern Scandinavian Home plan with Covered Rear Terrace and Comfortable Bedroom Layout
At the back, a 20′ x 5’8″ covered terrace extends the living space outdoors. It is perfect for summer evenings or relaxing in sheltered comfort. The main floor includes two well-designed bedrooms: a primary and a secondary. They share a full bathroom with a separate tub and shower, plus two sinks for daily convenience.
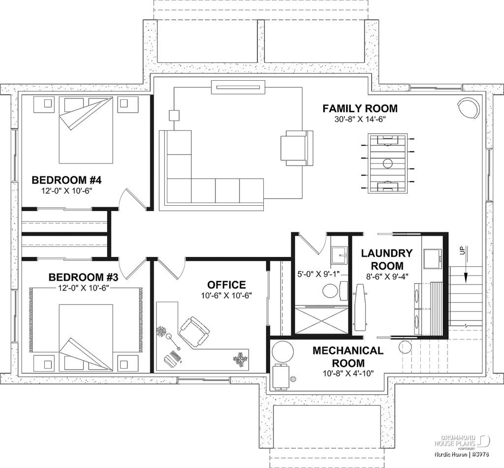
Flexible Basement Options for Future Growth
The standard basement is delivered unfinished to keep all options open.
The *optional finished basement adds two bedrooms, a home office (or Bedroom #5), a family room, a laundry room, a shower room, and mechanical storage.

*To receive the finished basement plan, select the option under “Choose Your Foundation” during checkout. Without this option, the unfinished basement is included at no extra cost.
Discover our large selection of Modern Scandinavian Homes here!
Get your free plan modification estimate, if you wish to make any changes to any of our house plans!
