Looking for a bright, flexible, and highly desirable modern farmhouse house plan that combines Scandinavian-inspired style, family functionality, and long-term versatility? The Strom 2 house plan (#3896-V1) by Drummond House Plans is one of the most impressive single-family home plans in our collection, offering soaring cathedral ceilings, abundant natural light, a garage, and space for up to 6 bedrooms.
Designed for modern families seeking style, comfort, and future flexibility, this high-end farmhouse floor plan blends timeless curb appeal with practical daily living. Whether you are building a primary residence, upgrading for a growing family, or searching for a premium modern farmhouse with finished basement option, Strom 2 stands out as an exceptional investment.
Before launching your project, be sure to explore our complete guide on the cost to build a house to better plan your total budget.
👉 View detailed floor plans, pricing options, photos, and full specifications for Strom 2 (#3896-V1) directly on our website.
Strom 2 house plan (#3896-V1) at a glance
The Strom 2 is a bright and spacious modern farmhouse home plan with garage designed for flexible family living. Its open-concept layout, impressive windows, dramatic 20-foot cathedral ceiling, and optional finished basement make it highly attractive for buyers seeking:
- Modern farmhouse house plans
- Scandinavian-inspired home designs
- Family house plans with garage
- Flexible 4 to 6 bedroom homes
- Homes with cathedral ceilings
- House plans with finished basement potential
👉 Looking for a smaller modern farmhouse or Scandinavian-inspired design? Explore the efficient Nordika model for a more compact and budget-conscious alternative.
A stunning modern farmhouse exterior with Scandinavian influence
The exterior of Strom 2 immediately captures attention with its fresh modern farmhouse design, clean architectural lines, warm materials, and Scandinavian-inspired simplicity. Its welcoming façade combines contemporary elegance with timeless charm, making it suitable for suburban, rural, wooded, or scenic lots.
Generous windows maximize natural light while reinforcing the home’s bright and inviting personality. This architectural approach appeals strongly to today’s buyers seeking both visual warmth and resale value.

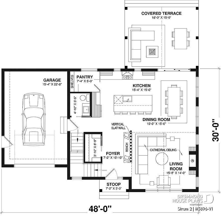
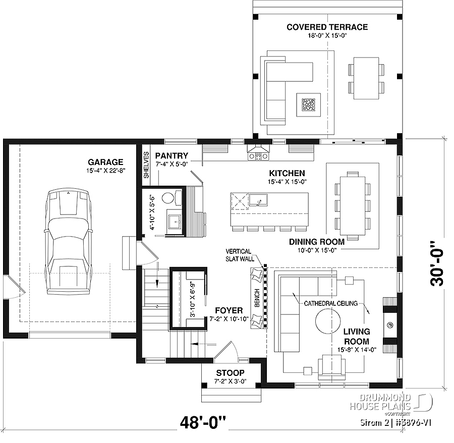
Strom 2’s thoughtfully designed main floor plan combines open-concept living, practical family flow, attached garage convenience, and bright modern farmhouse functionality for exceptional everyday comfort.
Bright living spaces with spectacular cathedral ceilings
One of the most desirable features of Strom 2 is its breathtaking main living area.
The living room feels expansive and luxurious thanks to:
- Dramatic 20-foot cathedral ceiling
- Large windows
- Warm central fireplace
- Open-concept family design
- Strong indoor-outdoor visual connection


The kitchen serves as the heart of the home, offering a practical central island, nearby pantry, and seamless connection to the dining room and living area. This highly functional layout supports both everyday family life and entertaining.

The dining room also benefits from abundant natural light, creating an inviting setting for meals, gatherings, and special occasions.

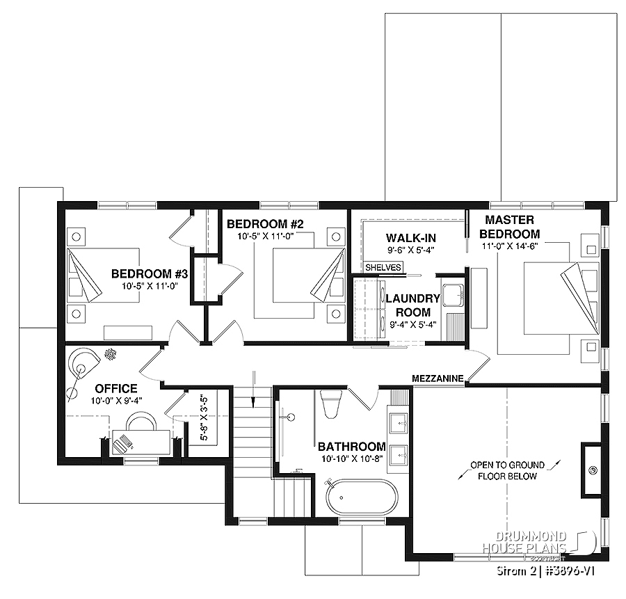
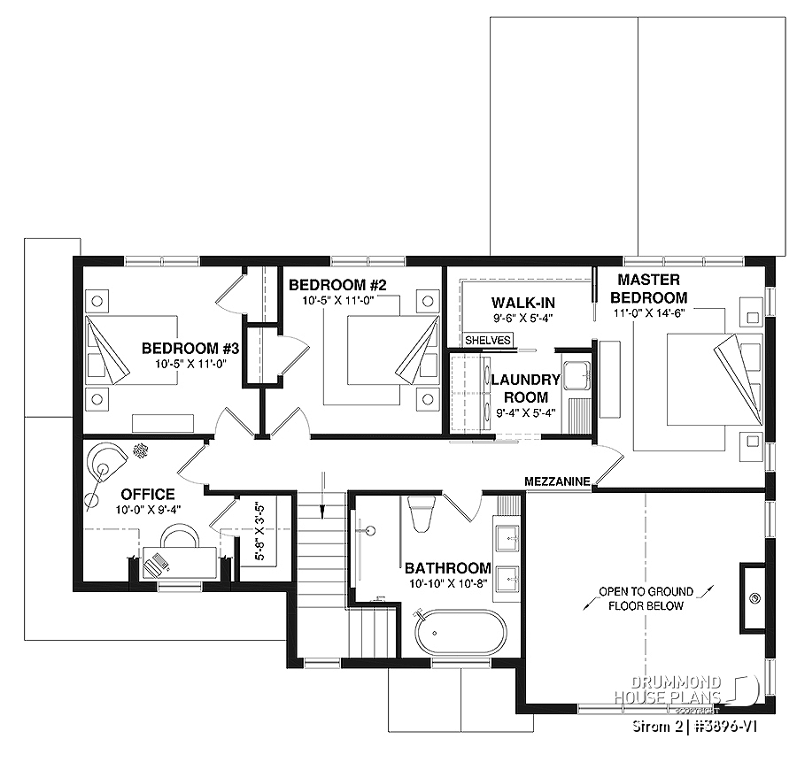
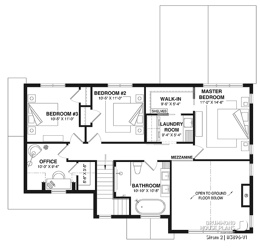
Flexible second floor designed for evolving family needs
The upper level of the Strom 2 house plan offers exceptional flexibility for changing lifestyles.

It includes:
- 3 spacious bedrooms
- 1 flexible room that can serve as bedroom #4 or home office
- Convenient upstairs laundry room
- Private family-oriented bedroom layout
This design is especially attractive for:
- Growing families
- Work-from-home households
- Multi-purpose living
- Guest accommodations
With the optional finished basement, Strom 2 can expand to as many as 6 bedrooms, significantly increasing long-term usability and resale potential.

The attached single garage offers convenient daily access while protecting homeowners from weather challenges.
Additional practical highlights include:
- Powder room placement for privacy
- Covered outdoor patio
- Functional mudroom-style entry
- Excellent family circulation

Main-floor comfort, organization, and everyday functionality
The entryway of this family farmhouse plan is both stylish and practical. A walk-in closet, built-in bench, and thoughtful layout help maintain organization while creating a warm first impression.

Covered Outdoor Space and Attached Garage
A covered patio extends the living area outdoors. It works well for meals and relaxed evenings. The attached single garage connects directly to the house. This feature increases comfort during cold or rainy days.
👉 Explore our full collection of Modern Farmhouse Plans for more bright, family-friendly designs.
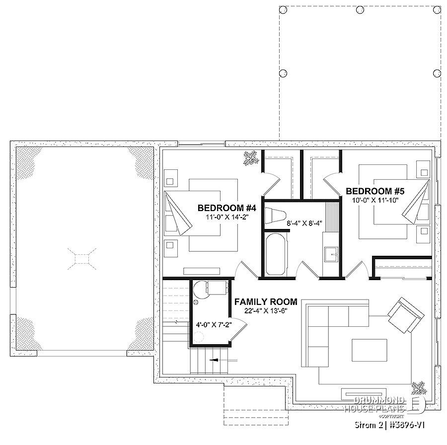
Optional finished basement adds major value
For buyers needing more living space, Strom 2 offers an optional finished basement that significantly expands functionality.
Optional finished basement includes:
- 2 large additional bedrooms
- Walk-in closets
- Spacious family room
- Full bathroom
- Storage/mechanical areas

This flexibility makes Strom 2 an excellent large family house plan, ideal for buyers who want adaptable living space without sacrificing long-term investment quality.
Without this option, the basement is delivered unfinished at no extra cost.
Why Strom 2 is one of today’s most desirable family house plans
Strom 2 successfully combines many of the most searched and requested features in today’s housing market:
- Modern farmhouse architecture
- Scandinavian influence
- Cathedral ceilings
- Open-concept living
- Garage
- Flexible home office potential
- Up to 6 bedrooms
- Finished basement option
- Strong resale appeal
This combination makes it particularly powerful for buyers seeking both lifestyle and investment value.
👉 Explore more modern farmhouse house plans, Scandinavian house plans, and family home plans within our collections.
Why buyers love Strom 2 (#3896-V1)
The Strom 2 house plan has become one of our most desirable modern farmhouse house plans thanks to its exceptional balance of style, flexibility, and long-term family functionality.
Buyers particularly appreciate:
- Bright natural light throughout
- Scandinavian-modern curb appeal
- Flexible future growth potential
- Dramatic cathedral living room
- Large family adaptability
- Premium long-term resale potential
This versatile design is especially well suited for:
- Growing families
- Homeowners who work from home
- Buyers seeking a high-end modern farmhouse style
- Families planning flexible living spaces for the future
Whether you are building your forever home, upgrading for more space, or investing in a flexible family property, Strom 2 delivers a powerful combination of comfort, visual appeal, and practical value.
Before launching your project, it’s also highly recommended to explore our complete guide on the cost to build a house to better understand your total investment and planning options.
Already own a farmhouse or older family home?
If you already own an older property, Drummond House Plans also offers renovation and custom remodeling services to modernize your home while improving functionality, style, and long-term value.
Frequently Asked Questions – Strom 2 House Plan (#3896-V1)
How many bedrooms can Strom 2 include?
Strom 2 can offer up to 6 bedrooms when the optional finished basement is selected.
Can Strom 2 be customized?
Yes. Drummond House Plans offers extensive modification services to adapt layouts, foundations, and design elements to your specific needs.
Is Strom 2 ideal for growing families?
Absolutely. Its flexible layout, multiple bedroom options, office potential, and basement expansion make it highly attractive for growing households.
Does Strom 2 work for scenic, suburban, or wooded lots?
Yes. Its architectural versatility allows it to integrate beautifully into many lot types.
Why is Strom 2 considered a strong long-term investment?
Its timeless design, modern features, flexible floor plan, and strong resale potential contribute to its long-term market appeal.
Explore More Modern Farmhouse House Plans
If you like the Strom 2 house plan (#3896-V1), you may also want to explore these related collections:
• Modern farmhouse house plans
• Scandinavian-inspired house plans
• Contemporary house plans
• Lake house and cottage plans with large windows
Discover Similar House Plans
If you like the Strom 2 house plan (#3896-V1), you may also enjoy these designs featuring bright living spaces and modern architecture.
Modern family house plan Charlie (#3634)
The Charlie house plan (#3634) showcases a bright contemporary design with expansive windows, open-concept living, and family-friendly functionality.
Contemporary home design Maveryk (#3632)
The Maveryk house plan (#3632) delivers bold modern architecture, practical everyday comfort, and flexible living spaces tailored for today’s households.
Warm modern house plan Leo (#3633)
The Leo house plan (#3633) blends warm modern style, abundant natural light, and a welcoming open layout designed for comfortable family living.
Comparing multiple plans can help ensure the best fit for your lot, family, and long-term goals.
Explore the original Strom modern Scandinavian house plan
The original Strom base model (#3896) offers a refined modern Scandinavian house plan with clean architectural lines, bright interiors, and a thoughtfully designed second-floor primary suite. This elegant design includes three upper-floor bedrooms, including a private owner’s suite, making it an excellent option for buyers seeking Scandinavian simplicity, timeless architecture, and practical family living.
The original Strom base model (#3896) showcases a refined modern Scandinavian design with clean lines, bright interiors, and timeless architectural simplicity. Image: Drummond House Plans
👉 Compare Strom and Strom 2 to determine which version best aligns with your style, family needs, and long-term goals.

Compare Strom 2 to similar modern farmhouse and Scandinavian house plans
If you are evaluating multiple layouts, comparing Strom 2 to other leading modern farmhouse house plans, Scandinavian-inspired home designs, and contemporary family house plans can help ensure you select the best home design for your budget, lot, and future needs.
Whether you prioritize cathedral ceilings, farmhouse warmth, Scandinavian simplicity, or maximum bedroom flexibility, exploring multiple models can provide valuable perspective before making your final decision.
Is Strom 2 right for your lot?
The Strom 2 house plan (#3896-V1) is highly adaptable to a wide variety of property types, including suburban neighborhoods, wooded lots, scenic countryside settings, and family-oriented developments.
Its balanced footprint, attached garage, bright window placement, and timeless modern farmhouse design allow it to integrate beautifully into both natural and residential environments.
Whether you are building on a family lot, a rural property, or a more scenic location, Strom 2 offers excellent flexibility while maintaining strong curb appeal and long-term value.
👉 Be sure to evaluate your lot characteristics, orientation, and future needs to maximize the full potential of this versatile home design.
A premium modern farmhouse designed for today and tomorrow
The Strom 2 house plan (#3896-V1) represents one of the strongest combinations of style, practicality, and flexibility available in today’s market for buyers seeking a bright, family-friendly, and highly adaptable home design.
With its:
- Bright open-concept layout
- Spectacular cathedral ceilings
- Flexible family spaces
- Optional finished basement
- Modern farmhouse curb appeal
- Scandinavian warmth
…Strom 2 stands out as a highly competitive choice for homeowners seeking a premium modern farmhouse house plan with garage, designed to evolve beautifully with changing family needs.
Whether you are building your forever home, planning for future growth, or investing in long-term resale value, Strom 2 delivers exceptional comfort, visual appeal, and architectural versatility.
👉 View full floor plans, photos, and all available options for Strom 2 (#3896-V1).
👉 Love this design but want changes? Request your free personalized modification quote today.
👉 Contact your nearest Drummond House Plans office for expert guidance tailored to your project.
Drummond House Plans has over 30 offices of house designers and offers a complete plan modification service online or in person. The company also provides full custom home design services to create a home perfectly tailored to your lot, budget, and lifestyle.
