Building an affordable house plan is now a priority for many buyers. An affordable home helps reduce costs without sacrificing comfort.
The 2180 and 2180-V1 models are designed with this reality in mind. They offer a simple, efficient, and cost-effective solution for different types of projects. In addition, their warm farmhouse style fits equally well in urban and rural settings. As a result, you benefit from a timeless design, even with a limited budget.
This affordable small house plan is ideal for building on a limited budget.
Affordable single-story house plan, compact and bright
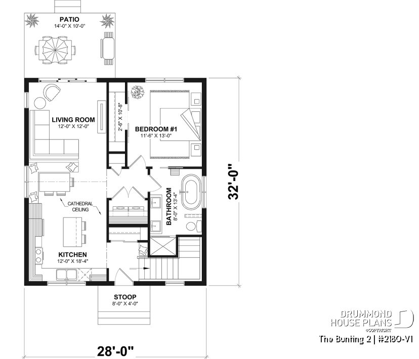
The compact Batiscan (#2180) is an affordable single-story house plan offering 784 sq. ft. It was designed to maximize every space without increasing construction costs.
The open-concept layout combines the kitchen and living room in one space. This creates a welcoming and functional environment for everyday living. Moreover, the cathedral ceiling adds a strong sense of openness. As a result, the home feels larger than its actual size.

This floor plan clearly shows how a small house can offer both comfort and functionality.
The primary bedroom offers a comfortable and well-designed space. The bathroom also includes a practical washer and dryer area.
Finally, the slab-on-grade foundation helps reduce construction costs. This makes it an excellent option for an affordable home or small-budget project.
Affordable evolving home with optional finished basement

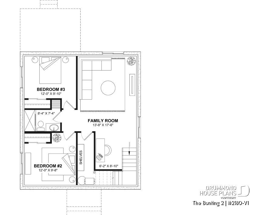
For those needing more space, the 2180-V1 version is a great option. This evolving home includes an optional finished basement.

The basement can feature two additional bedrooms. It also includes a family room, a bathroom, and storage space. In addition, a home office area can be added if needed. This makes the home ideal for growing families.

This approach allows you to choose the version that best fits your needs. You can select the Batiscan (#2180) or the Batiscan 2 (#2180-V1) depending on your project.
Who is this affordable house plan for?
This type of home is suitable for several buyer profiles.
- First-time buyers with a limited budget
- Cottage or vacation home projects
- Couples looking to reduce costs
- Families needing a flexible layout
- Investors aiming to maximize value
In addition, these plans can be customized to suit your specific needs. This ensures a tailored solution with controlled costs.
Explore our custom house plan online services or plan modification options, available through our network of 30 offices.
An affordable home also ideal as a cottage
These models are also perfect for an affordable cottage project. Their compact design allows them to fit well on various types of lots.
In addition, the farmhouse style creates a warm and inviting atmosphere. This is ideal for relaxing stays with family or friends. The 2180 model is particularly well suited for a simple cottage build. Meanwhile, the 2180-V1 version offers more space for hosting guests.
As a result, you can adapt your project whether for a main residence or a cottage.
Why choose a well-designed affordable home?
Choosing an affordable home does not mean compromising quality. A well-designed plan helps optimize every square foot. In addition, a compact layout reduces maintenance costs. This leads to long-term savings.
Moreover, simpler homes are often faster to build. This helps reduce timelines and unexpected costs. To better understand how this type of project fits within your overall budget, explore our complete guide on the cost to build a house and plan your project with confidence.
People also search for
- affordable single-story house plan
- small budget house plans
- compact house plan with basement
- small farmhouse house plan
- 2 to 3 bedroom affordable house plan
See also: Nordika and Strom 2 farmhouse plans for more inspiration.
FAQ – Affordable house plan 2180 and 2180-V1
Are these plans truly affordable to build?
Yes, they are designed to reduce costs through simplicity and efficiency. The floating slab foundation (also called slab-on-grade foundation) helps keep the budget under control. In addition, most of our plans can be adapted to different foundation types, including slab-on-grade, basement, or other options depending on your needs.
What is the difference between the 2180 and 2180-V1?
The 2180 model is built on a slab without a basement. The 2180-V1 includes an optional finished basement for more space.
Is a basement included in these plans?
No, the 2180 model does not include a basement, as it is designed on a slab-on-grade foundation. However, the 2180-V1 includes an optional finished basement. Both models can also be purchased with different foundation options, giving you the flexibility to adapt the plan to your project.
How many bedrooms can these plans offer?
The base model includes one main bedroom. The 2180-V1 version can offer up to three bedrooms.
Can these plans be modified?
Yes, our team can adapt the plans to your needs. You can adjust layout, dimensions, and features.
A smart, flexible and affordable home solution
This affordable house plan offers an ideal solution for building at a lower cost. Therefore, the 2180 and 2180-V1 models provide a flexible and efficient approach.
In addition, their evolving design adapts to your future needs. As a result, you invest in a durable and well-thought-out home.
By choosing a smart and affordable home, you maximize space while controlling your budget.
Get a free quote to adapt this plan to your budget
View The Bunging (#2180) and The Bounting 2 (#2180-V1) economical house plans in detail
Speak with one of our design expert
