The Cedar Grove 2 house plan (#3161-V1) was designed for families whose teens need their own space. While parents enjoy a bright, elegant main floor, the basement becomes a true living zone for the kids.
Inspired by modern farmhouse style, this home offers a warm atmosphere with a thoughtfully planned interior layout.
🎬 👉 Discover all the details and watch the Cedar Grove 2 (#3161-V1) video directly on our website.

Why Choose the Cedar Grove 2 House Plan (#3161-V1) for Your Build
This model stands out with features families truly appreciate:
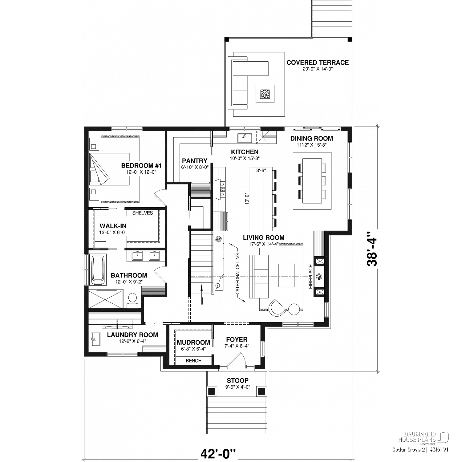
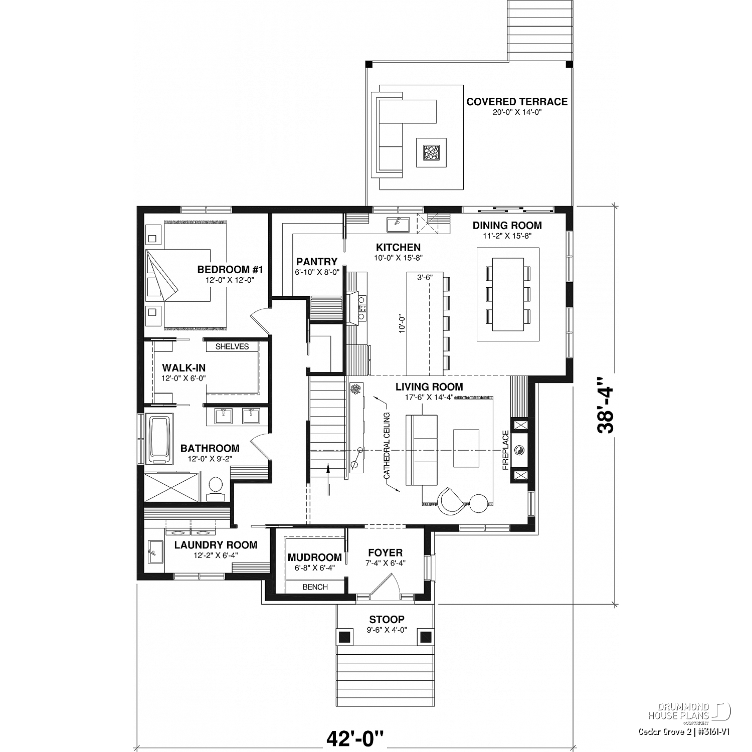
- Open main floor with 9-foot ceilings and cathedral ceiling in the living room
- Primary bedroom on the main floor with walk-in closet and direct bathroom access
- Covered front porch and large covered rear patio
- Kitchen with central island and walk-in pantry
- Spacious mudroom with built-in bench
- Convenient main-floor laundry room
This layout creates a comfortable environment, perfect for everyday living and entertaining.
👉 Looking for a larger home with a garage? Take a look at our stunning Robin house plan
A Bright and Welcoming Interior
From the moment you enter, Cedar Grove 2 impresses with smooth circulation and well-defined spaces. The living room with fireplace becomes the heart of the home. Meanwhile, the open kitchen and dining area encourage family connection.
The main-floor primary bedroom offers privacy and calm. Multiple built-in storage areas also simplify daily organization.
It’s a great example of a modern farmhouse house plan designed for real life.



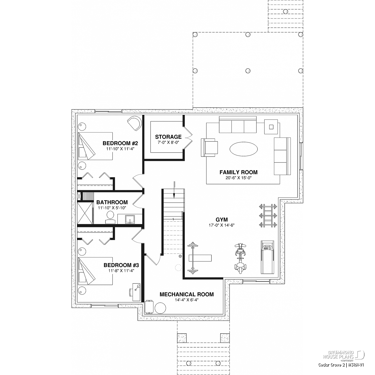
A Basement Designed for Teens
The optional finished basement transforms family living. It includes:
Two additional bedrooms
A dedicated family room
A versatile gym corner
A full bathroom
This setup creates a semi-independent space ideal for teens. That’s why Cedar Grove 2 is such a popular family home plan for households with adolescents.
Adapted to Your Needs and Your Lot
The basement can be delivered unfinished or fully completed, depending on your project. The interior layout can also be customized.
Whether you’re building in the suburbs or the countryside, this house plan with finished basement adapts easily to different lots and lifestyles.


A bright laundry space with built-in storage, wood countertop and modern farmhouse design.
✅ Frequently Asked Questions – Cedar Grove 2 House Plan (#3161-V1)
Does this plan work on typical residential lots?
Yes — it works well on both urban and rural properties.
How many bedrooms are possible?
Up to 3 bedrooms with the finished basement option.
Can parents live on the main floor?
Yes — the primary bedroom is located on the main level.
Can the basement layout be customized?
Absolutely — our team can adapt the design to your family’s needs.
🏡 What If Cedar Grove 2 Became Your Next Home?
The Cedar Grove 2 house plan (#3161-V1) is an excellent choice for families with teens seeking comfort, light, and well-defined living zones. With its main-floor primary suite and teen-friendly basement, this model creates a natural balance between parental comfort and youth independence.
Designed to grow with your family, Cedar Grove 2 is a smart option if you’re looking for a warm, practical, and modern home.
📐 Request a custom modification
📍 Contact your regional Drummond office


