Designing a home that truly fits your lifestyle is more important than ever. The North (#6128) model perfectly illustrates the advantages of a 2-story house plan with garage designed with care and intention.

This house offers a bright, warm, and highly functional layout. In addition, it integrates beautifully on scenic lots, especially those surrounded by nature or water views. Thanks to its expansive windows, natural light fills the home throughout the day. As a result, every space feels open, inviting, and connected to the outdoors. This 2-story house plan with garage is also ideal for homeowners looking for a main-floor primary bedroom, a highly sought-after feature in today’s market.

Its modern rustic style (also known as modern farmhouse) blends warm materials with clean lines. As a result, it creates a timeless and inviting home that integrates beautifully with its surroundings.

An open, bright and welcoming living area

From the moment you enter, the impact is immediate. The two-story open-to-above space creates an impressive sense of volume.

2-story house plan North 6128 open-to-above entry with large windows and high ceilings
Open-to-above entry with impressive ceiling height – North (#6128)

In addition, the single-car garage connects directly to the home. It leads to a practical mudroom area with built-in storage and a bench, making everyday organization simple and efficient.

The kitchen, centered around a functional island, becomes a natural gathering point. It is both practical and welcoming for everyday living and entertaining. In addition, a well-designed pantry provides extra storage, while the STÛV fireplace reinforces the warm and inviting atmosphere at the heart of the home.

A kitchen designed for everyday living.

2-story house plan North 6128 kitchen with island and pantry open concept with STÛV fireplace
A stylish and functional kitchen with pantry, designed to make everyday living easier and more enjoyable – North (#6128)

The dining area benefits from exceptional natural light. In addition, the built-in banquette enhances both comfort and charm.

2-story house plan North 6128 dining room with built-in banquette design ceiling natural light and STÛV fireplace
A peaceful primary bedroom offering comfort, privacy, and a relaxing retreat at the end of the day – North (#6128)

Finally, the living room open to above becomes the heart of the home. It showcases the full potential of a well-designed 2-story house plan with garage. Moreover, 9-foot ceilings on the main floor enhance the sense of space. In the entry and living room, the ceiling height reaches 18’6”, creating a dramatic and impressive volume.

2-story house plan North 6128 open-to-above living room with STÛV fireplace large windows and high ceilings
Open-to-above living room with STÛV fireplace and abundant natural light – North (#6128) | Image: Drummond House Plans

A STÛV fireplace at the heart of the design

This plan is part of a collection developed in collaboration with STÛV. As a result, the STÛV s21 wood-burning fireplace is fully integrated into the design. It quickly becomes a central feature of the home. It brings warmth, ambiance, and character to the living space.

open concept living area North 6128 kitchen dining living room STÛV fireplace
Open-concept living area centered around a STÛV fireplace in the North (#6128)

Moreover, its sleek design fits perfectly with the modern farmhouse style. Therefore, it naturally creates a focal point for gathering and relaxation.

Flexible layout: 2 or 3 bedrooms depending on your needs

This 2-story house plan with garage offers great flexibility.

On the main floor, the primary bedroom provides comfort and privacy, a highly sought-after feature in a 2-story house plan with garage.

The primary bathroom is designed as a true relaxation space, combining comfort, elegance, and functionality.

It includes a full bathroom and convenient access to the laundry area.

2-story house plan North 6128 main floor layout with primary bedroom open living area and STÛV fireplace
Main floor layout with primary bedroom, open-concept living area and STÛV fireplace – North (#6128)

For homeowners seeking a fully tailored design, this model can also serve as a starting point for a custom house plan adapted to your lifestyle.

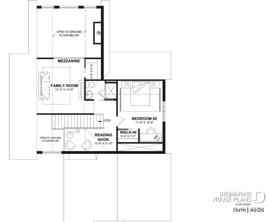
Upstairs, a spacious secondary bedroom is included. A family room with a mezzanine completes the level. However, this space can easily be converted into a third bedroom. As a result, the home can accommodate 2 or 3 bedrooms depending on your needs.

second floor plan North 6128 bedrooms layout functional 2-story house plan with garage
Second floor plan of the North (#6128) with well-organized bedrooms and private spaces

Who is this 2-story house plan with garage for?

This model is ideal for various types of homeowners.

👉 For a fully personalized project, explore our custom house plans online service to adapt every detail to your needs.

Foundation and adaptability

In addition, the base foundation is designed as a slab-on-grade. However, other foundation options are available depending on your lot.

This flexibility allows the 2-story house plan with garage to adapt to your specific needs. Our experts guide you through every step of the process.

👉 To better plan your project, explore our guide on construction costs and budget considerations.

A plan adaptable through our 30 offices

This model can be modified to suit your preferences. Our technologists can adjust layout, dimensions, and design details.

As a result, you get a 2-story house plan with garage tailored to your lifestyle.

People also search for

Popular search queries related to this model include:

Side view North 6128 large windows open concept living area STÛV fireplace natural light
Rear view of the North (#6128) showcasing the bright open-concept living space

FAQ – North (#6128) house plan

Is this plan suitable for all types of lots?

Yes, it works especially well on scenic or nature lots. It can also be adapted to different site conditions.

Can this plan be modified?

Absolutely. Our team can customize it to your needs. Adjustments can be made early in the process.

How many bedrooms does it offer?

The plan includes 2 bedrooms with an option for a third. This provides flexibility for different lifestyles.

What type of foundation is included?

The base option is a slab-on-grade foundation. Other foundation types can be adapted if needed.

Is the STÛV fireplace included?

The plan is designed for the STÛV s21 model. It is recommended to maintain the design intent.

A home designed to evolve with you

The North (#6128) model stands out for its balance of style, functionality, and comfort. This 2-story house plan with garage is designed to meet today’s needs while offering long-term flexibility.

Thanks to its bright open spaces, modern farmhouse style, and integrated STÛV fireplace, it creates a warm and inspiring living environment. In addition, its flexible layout allows you to easily transition from 2 to 3 bedrooms, depending on your needs. Moreover, this plan can be fully customized to suit your lot, your budget, and your lifestyle.

This plan combines modern farmhouse style, functionality, and long-term flexibility, making it a strong choice for a wide range of homeowners. It is a home designed not only for today, but to grow and evolve with you over time.

With over 50 years of experience, our team ensures every modification meets high standards of design and functionality.

👉 Get your free quote to customize the North (#6128) house plan
👉 Explore the North (#6128) plan and its options
👉 Speak with a design expert near you