If you’re dreaming of a warm, light-filled home blending Scandinavian charm with Modern design, Olympe 4 (#3992-V3) may be perfect for you. In addition, this modern Scandinavian walkout basement house plan offers a peaceful retreat, whether near a quiet lake, in the forest, or beside a ski mountain. As a result, bright interiors, an open layout, and seamless indoor–outdoor flow make this Scandinavian bungalow comfortable and stylish in every season.
👉 View the complete Olympe 4 (#3992-V3) house plan, floor layouts, photos, and specifications.
Olympe 4 House Plan (#3992-V3) at a Glance
The Olympe 4 house plan (#3992-V3) by Drummond House Plans is a modern Scandinavian bungalow designed for bright living and seamless indoor-outdoor connections. Featuring a cathedral-ceiling living area, expansive windows, and a finished walkout basement, this home is ideal for sloped lots, lakeside properties, or mountain settings.
Ideal Walkout Basement House Plan for Sloped Lots
Olympe 4 makes a strong impression from the very first glance. Its clean modern Scandinavian façade features natural materials, crisp lines, and beautifully balanced volumes where architectural simplicity truly shines. In particular, expansive quadruple patio doors connect the family room directly to the covered terrace, filling the interior with natural light. At the same time, the finished walkout basement adds valuable living space, creating flexible areas for family time, guests, or storage. As a result, these thoughtful design elements enhance everyday living and reinforce the lifestyle appeal of this walkout basement house plan. Ultimately, it’s ideal for homeowners who love entertaining, relaxing, and living close to nature.
🌿 Eco-Ready Modern Scandinavian Design for Sustainable Living
Designed with future sustainability in mind, Olympe 4 (#3992-V3) is a house plan with walkout basement supporting eco-conscious living. Moreover, its clean roof geometry and favorable sun orientation make it ideal for future solar panel installation (shown for illustration purposes only). At the same time, blending modern Scandinavian architecture with long-term energy potential, this design balances comfort, efficiency, and lifestyle flexibility.
Rear Exterior with Walkout Basement and Covered Terrace
The rear of the Olympe 4 house plan (#3992-V3) highlights its connection to the surrounding landscape. Large windows bring natural light deep into the home, while the covered terrace extends the living space outdoors. The walkout basement creates a seamless transition to the backyard, making this modern Scandinavian house plan especially well suited for sloped lots, lakeside properties, or homes built in nature.

Olympe 4 (#3992-V3) — A modern Scandinavian house plan with walkout basement, designed with a roof shape ideal for future solar panel installation 🌿
A Spectacular Open-Concept Living Area
Step inside OLYMPE 4 and the “wow” factor is immediate. The living room, kitchen, and dining room come together in a bright, open-concept layout highlighted by oversized windows and impressive views. The soaring 16-foot cathedral ceiling adds breathtaking volume, while the exposed wood beams create warmth and a strong Scandinavian identity.
From the family room, expansive quadruple patio doors open fully to the large covered terrace, ideal for:
-
an outdoor kitchen
-
a lounge area
-
family meals
-
cozy evenings with friends
Rain or shine, this space quickly becomes the heart of the home.

Key Features of the Olympe 4 House Plan (#3992-V3)
• bright open-concept living area with cathedral ceiling
• expansive windows for natural light
• seamless indoor-outdoor living with covered terrace
• finished walkout basement ideal for sloped lots
• flexible spaces for guests or family activities
Who Is the Olympe 4 House Plan Designed For?
The Olympe 4 house plan (#3992-V3) is perfect for:
• homeowners looking for a compact, cost-efficient house plan that is simple to build
• families who love bright open living spaces
• homeowners building on sloped or view lots
• nature lovers seeking a Scandinavian-inspired retreat
• buyers wanting flexible basement living space
A Primary Suite Designed for Peace and Comfort
First, Olympe 4 (#3992-V3) features an open-concept main floor designed for comfort and everyday living. In addition, a spacious living area with cathedral ceiling connects seamlessly to the kitchen and dining space, creating a bright environment. Meanwhile, the generous and bright primary bedroom is a private sanctuary located on the main floor. It includes a walk-in closet and private ensuite, offering both privacy and convenience. Next, large patio doors open onto a large covered patio, extending the living space outdoors. Moreover, with its functional mudroom, thoughtful layout, and abundant natural light, this modern Scandinavian house plan suits families seeking style and practicality. Finally, with an indoor fireplace for winter evenings and a protected terrace for sunny summer days, Olympe 4 flows beautifully between seasons.

Optional Finished Basement: Extra Space and Endless Possibilities
For families who want more room, the optional finished basement adds exceptional functionality:
-
2 bright secondary bedrooms for a total of 3 bedrooms, perfect for kids, guests, or a dedicated home office
-
A spacious family room or game room for movie nights and indoor fun
-
A full bathroom for a total of 2.5 bathrooms
-
A convenient laundry room with a smart laundry chute connected directly to the main-floor primary bedroom
This lower level transforms the home into a flexible, multi-purpose living environment suited to evolving family needs.

A Modern Scandinavian Home with Many Versions
First, the OLYMPE 4 plan collection blends Scandinavian architecture, natural light, indoor–outdoor living, and modern comfort. In addition, from cathedral ceilings to unique terrace accesses and optional basement layouts, every detail enriches everyday life. Finally, whether you love the mountains, lakeside living, or bright peaceful homes, this bungalow delivers an elevated and comforting lifestyle.
👉 See the Entire OLYMPE House Plan Collection

Discover Similar Scandinavian House Plans
If you like the Olympe 4 house plan (#3992-V3), you may also enjoy these designs:
Nordic Haven (#3978)
A modern Scandinavian house plan with clean lines and bright living spaces.
Strom 2 (#3896-V1)
A bright modern farmhouse house plan with flexible family living spaces.
✅ Frequently Asked Questions – Olympe 4 (#3992-V3)
Is Olympe 4 (#3992-V3) a walkout basement house plan?
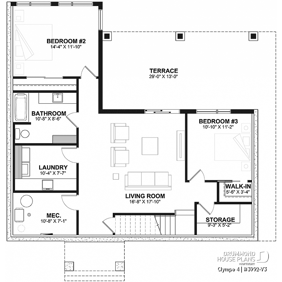
Yes. First, Olympe 4 (#3992-V3) features a fully finished walkout basement with two bedrooms, a large family room, and storage. In addition, it includes a full bathroom, laundry area, and multiple storage spaces. As a result, it’s ideal for sloped lots or properties with a view.
Is the primary bedroom located on the main floor?
Yes. Moreover, this modern Scandinavian house plan includes a spacious primary suite on the main floor. Additionally, it features a walk-in closet and private ensuite, offering comfort and privacy without stairs.
Does this plan include outdoor living space?
Yes. Next, large patio doors open onto a large covered patio, extending the living area outdoors. Therefore, this design is perfect for enjoying all seasons.
Is Olympe 4 suitable for sloped lots?
Yes. Additionally, with its walkout basement configuration, Olympe 4 (#3992-V3) suits sloped or view-oriented lots. At the same time, it maximizes natural light on both levels.
Are solar panels included in the construction plans?
No. However, while the roof design supports future solar installation, panels shown are for illustration only. They are not included in the construction plans.
How many bedrooms does Olympe 4 (#3992-V3) offer?
Finally, this plan includes three bedrooms total — one upstairs and two in the walkout basement.
As a result, it’s ideal for families or hosting guests.
Explore Related House Plan Collections
If you like the Olympe 4 house plan (#3992-V3), you may also explore:
📐 Want to personalize the OLYMPE 4?
Like all our models, OLYMPE 4 can be customized to perfectly fit your needs. Whether you want to expand certain rooms, rearrange the layout, add windows, or modify spaces, almost anything can be adapted to better suit your lifestyle.
Simply complete this form below to receive a free estimate for your plan modifications. Our experienced design team will review your request and guide you through the possibilities to ensure your home plan reflects 100% of your vision and requirements.
With Drummond House Plans, creating a home that truly fits your needs is simple, flexible, and fully supported.
A Modern Scandinavian Walkout Basement House Plan Designed for Inspired Living
Whether you’re dreaming of a peaceful lakeside retreat, a bright Scandinavian-inspired home, or a modern bungalow designed for sloped lots, the Olympe 4 house plan (#3992-V3) offers a beautiful balance of style, comfort, and functionality. With its open-concept living spaces, cathedral ceiling, covered terrace, and finished walkout basement, this thoughtfully designed home adapts perfectly to modern lifestyles. Explore the complete plan details and discover how Olympe 4 could become the ideal foundation for your future home.
