The SKYBRIDGE 4 (#2942) is a bright, affordable, and small cottage plan with a walkout basement. Not only is it designed to simplify construction, but it also maximizes everyday comfort. Thanks to its clean lines, this model naturally appeals to nature lovers and ski enthusiasts. In addition, the walkout basement transforms the lower level into true living space. As a result, the home feels larger and more versatile than its footprint suggests. With 787 sq. ft. on the main floor and 787 sq. ft. on the walkout level, therefore, every square foot is thoughtfully optimized for function and flow.
👉 Explore the SKYBRIDGE 4 (#2942) plans and options
Simple Architecture Designed for Natural Light
From the moment you arrive, abundant windows immediately catch your eye. Moreover, triple patio doors further increase natural light throughout the home. As a result, the living spaces stay bright all day long. In addition, the full-width cathedral ceiling enhances this open and airy feeling. At the heart of the home, the angled fireplace creates warmth without blocking panoramic views. Consequently, the living room remains both inviting and filled with natural light.
☀️ Looking for a home or cottage with a walkout basement? Discover our bright, thoughtfully designed models perfect for sloped and scenic lots.
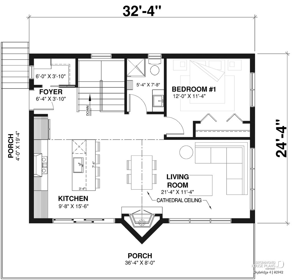
A functional and welcoming main floor
The side entry leads to a walk-in mudroom with deep storage. Next, the staircase to the basement sits conveniently near the entrance. The primary bedroom is located on the main floor, close to a full bathroom. At the back, the kitchen, dining area, and living room form an open-concept layout. The large central island becomes a natural gathering place. Finally, the porch on two sides extends living outdoors.

A Bright and Versatile Walkout Level
The lower level fully benefits from the walkout design. Therefore, natural light fills the spacious family room. Two additional bedrooms can be added here. You will also find a bathroom, laundry area, and generous storage. The layout of this cottage plan with walkout allows for up to three bedrooms in total.

Three Small Cottage Plans with Walkout for Scenic Lots
If you are searching for a small cottage plan with walkout similar to the MASSIF (#2942), three other models deserve your attention. These affordable cottages are designed to maximize space while keeping construction costs under control. In addition, their simple layouts and efficient footprints make them economical to build. Thanks to generous windows and open-concept living areas, each small cottage plan with walkout is perfectly suited for wooded, mountain, or waterfront lots. As a result, natural light fills the interior while the surrounding views become part of the everyday experience. With their compact and functional design, these cottages offer an ideal solution for a four-season retreat, a vacation home, or even a profitable rental investment.
✅ Why Choose the SKYBRIDGE 4 (#2942) Walkout Cottage House Plan
• Affordable rustic cottage that’s easy to build
• 1 to 3 bedrooms depending on your needs
• 1 to 2 functional bathrooms
• Abundant windows and exceptional natural light
• Cathedral ceiling and warm central fireplace
• Bright, livable walkout basement
• Porch on two sides for enjoying scenic views
❓ Frequently Asked Questions
Is the SKYBRIDGE 4 (#2942) suitable for sloped lots?
Yes. The walkout basement works perfectly on sloped or scenic properties.
How many bedrooms can this plan include?
From one to three bedrooms, depending on your layout.
Is the basement dark?
No. The walkout design provides beautiful natural light.
Is this cottage affordable to build?
Yes. Its simple structure helps reduce construction complexity.
Can it be used as a full-time residence?
Yes. It works well as both a cottage or year-round home.
A Home that Adapts to your Lifestyle
The SKYBRIDGE 4 (#2942) can be customized to fit your specific needs. You may adjust spaces, move rooms, or personalize key features. Every project is unique. Our designers can help create a cottage perfectly suited to your lot, lifestyle, and budget.
📐 Talk to a home designer to customize your cottage
❤️ Download the complete SKYBRIDGE 4 plan sheet today
👉 Discover this very popular rustic chalet house plan with mezzanine!



