The PORTLAND house plan (#6127) stands out with its clean Scandinavian style and naturally warm character. From the start, its balanced architecture blends beauty, functionality, and durable materials for modern living.
A Scandinavian Architecture with Clean, Elegant Lines
Inspired by Scandinavian design, the PORTLAND home focuses on simplicity and visual harmony. As a result, its well-proportioned lines create a timeless silhouette suitable for urban or wooded settings.

Distinctive Maibec Red Cedar Siding
On the exterior, Maibec red cedar siding adds warmth and authentic character. Over time, the wood naturally weathers into a sought-after silver-gray patina. In addition, this durable material withstands harsh weather while maintaining lasting elegance.
Additionally, explore the Maibec x Drummond House Plans collection here!
Bright, Well-Proportioned Interior Spaces
Upon entry, 9-foot ceilings on the main floor enhance openness and natural brightness. Therefore, daylight flows generously throughout the main living areas.

A Stunning Living Room with Cathedral Ceiling
At the heart of the home, the living room features a cathedral ceiling over 18 feet high. This impressive height creates an airy, refined atmosphere inspired by Scandinavian homes.

An Open and Inviting Living Area
Continuing the layout, the kitchen, dining room, and living room form a seamless open-concept space. This design encourages interaction and easily adapts to family gatherings or entertaining guests.
A Functional and Inspiring Kitchen
Open to the dining area, the kitchen naturally inspires creativity. Moreover, its efficient layout simplifies movement and everyday tasks.
A Comfortable Main-Floor Primary Suite
To maximize comfort, the primary bedroom is conveniently located on the main floor. It also includes a private shower room and two practical closets.

An Upper Floor Designed for Family Living
Upstairs, two bright bedrooms welcome children or guests. In addition, a full bathroom and a versatile family room complete this level.
A Multi-Purpose Family Room
Ideal for movie nights, games, or remote work, this space adapts to changing family needs.

Outdoor Living and an Expandable Basement
Outside, a covered side terrace allows year-round outdoor enjoyment. Meanwhile, the unfinished basement offers excellent future expansion potential.
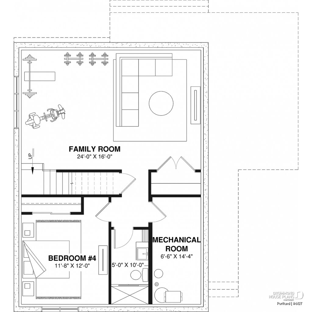
Finished Basement Option ($)
As an option, the basement may include a fourth bedroom, shower room, and home gym. Consequently, an additional family room completes the living space.

A Timeless Scandinavian Home with Maibec Red Cedar
In conclusion, the PORTLAND house plan (#6127) blends clean design, modern comfort, and durable materials. Ultimately, it offers a warm, functional lifestyle ideal for today’s families.
Finally, discover the new Scandinavian-style cabin plan NORDIC HAVEN here!



