The St-Laurent (#2190) is an ideal choice for anyone looking for a 2-bedroom single-story house plan that is affordable, functional, and full of character. With 948 sq. ft. on the main floor and a basement of equal size, this design maximizes every square foot while maintaining a warm, country-inspired style.

In addition, this model is part of our collection designed to offer excellent value. As a result, it provides a smart starting point for many types of homeowners. If your needs are more specific, you can also explore our custom house plans online service to create a design tailored to your lifestyle and lot.

Who Is This House Plan For?

This 2-bedroom single-story house plan is a great fit for:

  • Small families looking for a functional and efficient layout
  • First-time homebuyers seeking an affordable house plan
  • Retirees wanting to downsize without sacrificing comfort
  • Buyers with rural or nature-based lots
  • Homeowners planning to expand their living space over time

If you are unsure whether to modify an existing design or start from scratch, explore our guide on custom vs pre-designed house plans to make the right decision.

Key Benefits of the St-Laurent (#2190)

  • Affordable construction thanks to a compact and efficient layout
  • FREE detached garage plan #2973 included
  • Cathedral ceiling in the main living area for added space and light
  • Large windows providing abundant natural light
  • Functional kitchen with pantry
  • 2 bedrooms on the main floor
  • Optional finished basement with 2 additional bedrooms
  • Up to 4 bedrooms total
  • Two separate living areas, including a basement family room
2-bedroom single-story house plan St-Laurent 2190 grey exterior modern country style
Grey exterior version of the St-Laurent (#2190), a modern take on a 2-bedroom single-story house plan.

Overall, this 2-bedroom single-story house plan combines efficiency, comfort, and flexibility.

👉 Discover the full details of the St-Laurent (#2190) and explore this 2-bedroom single-story house plan in depth.

A Valuable Bonus: Free Garage Plan Included

This house plan includes the detached garage plan (#2973) at no additional cost. This bonus gives you added flexibility, whether you choose to build the garage now or later, depending on your budget and needs.

free detached single garage plan 2973 Colonial Port front exterior included with house plan
Detached garage plan (#2973) included at no additional cost

👉 Explore the included garage plan (#2973) to see all its features.

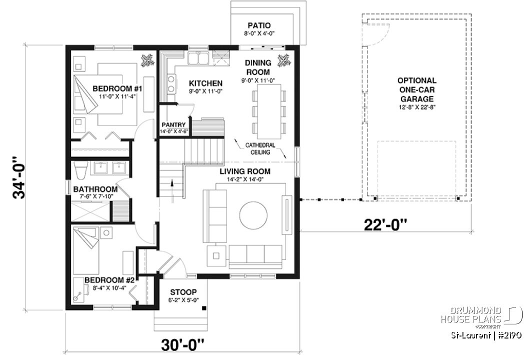
A Bright and Open Living Space

The heart of the home is its open-concept layout, where the kitchen, dining area, and living room are connected under a beautiful cathedral ceiling. As a result, the space feels larger and more inviting, even within a compact footprint.

main floor plan 2-bedroom single-story house plan St-Laurent 2190 layout
Main floor layout of the St-Laurent (#2190) featuring 2 bedrooms and an open-concept living area.

In addition, the abundant windows bring in natural light throughout the day. Therefore, this thoughtful design helps create a comfortable and enjoyable living environment while keeping construction costs under control.

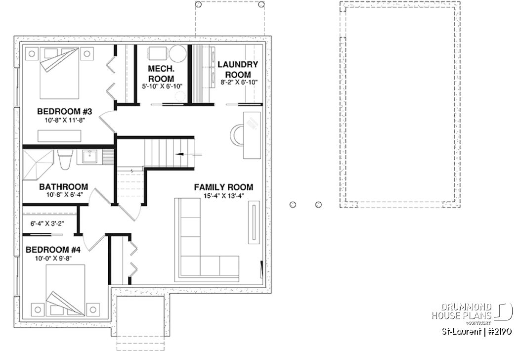
A Flexible and Expandable Basement

The 948 sq. ft. basement offers excellent flexibility. Initially, it can remain unfinished, allowing you to manage your budget more easily.

finished basement plan St-Laurent 2190 with 2 additional bedrooms and family room
Optional finished basement layout of the St-Laurent (#2190) with 2 extra bedrooms and a family room.

Later, the optional finished layout can include:

  • 2 additional bedrooms
  • A family room
  • A laundry room
  • A bathroom with shower
  • An office nook
  • A mechanical room

As a result, this 2-bedroom single-story house plan can easily evolve into a 4-bedroom home.
If you are considering a fully personalized layout, explore our custom house plans online to adapt this concept even further.

An Affordable and Smart Investment

Thanks to its simple shape and efficient layout, the St-Laurent (#2190) helps control construction costs. In addition, its flexibility makes it a smart long-term investment.

For buyers looking to build efficiently while maintaining quality and comfort, this model offers an excellent balance.

People Also Search For

FAQ – St-Laurent (#2190) House Plan

What is the size of the St-Laurent (#2190)?

The home offers 948 sq. ft. on the main floor, plus a basement of equal size, providing flexible living space.

How many bedrooms does this house plan include?

The main floor includes 2 bedrooms. With the optional finished basement, the home can offer up to 4 bedrooms.

Is the basement included and can it be finished later?

Yes, the basement is included and can remain unfinished initially. A finished layout is available as an option.

Is a garage included with this house plan?

Yes, this plan includes a detached garage plan (#2973) at no additional cost, offering added value and flexibility.

Is this plan suitable for a small budget?

Yes, this is an affordable house plan designed with a compact layout to help reduce construction costs.

Can this house plan be modified?

Yes, this plan can be customized to fit your needs. Request your free cost estimate to modify the St-Laurent (#2190) today.

Conclusion

In conclusion, the St-Laurent (#2190) is a well-designed 2-bedroom single-story house plan that is compact, bright, and affordable. It offers the flexibility to grow with your needs while maintaining comfort and efficiency.

👉 Explore the St-Laurent (#2190), discover the included garage plan (#2973), and start your project with confidence today.