Choosing a bright single-story house is a top priority for many families today. Homeowners are looking for a space that is functional, easy to live in, and adaptable over time. The Chatelain (#3162) model perfectly meets these expectations. It features a smart layout, large windows, and a main-floor primary suite with a private bathroom.
With 1,370 sq. ft. on a single level, this single-story home offers smooth, barrier-free circulation. In addition, it includes an optional finished basement, allowing you to adapt the home as your needs evolve.
This main floor plan highlights the efficient layout and flow of this bright single-story house.

Chatelain (#3162) – Drummond House Plans
A bright and welcoming single-story home
From the moment you step inside, this bright single-story house stands out with its functional layout. The entryway includes a practical mudroom with a built-in bench, making everyday organization easier—especially during colder seasons.
The open-concept living area highlights abundant natural light and seamless flow between spaces. Thanks to large windows, every space benefits from a warm and inviting atmosphere throughout the day.

Chatelain (#3162) – Drummond House Plans
The living room, centered around a fireplace with built-in cabinetry, naturally becomes a gathering space.

Chatelain (#3162) – Drummond House Plans
Meanwhile, the kitchen features a large island and a practical pantry, making it ideal for both daily living and entertaining.

Chatelain (#3162) – Drummond House Plans
The dining area, located nearby, also benefits from excellent natural light.

Chatelain (#3162) – Drummond House Plans
👉 This type of layout is perfect if you are considering a custom home plan tailored to your lifestyle.
A main-floor primary suite designed for comfort
One of the key advantages of this single-story house is its main-floor primary suite. This layout is highly sought after for both comfort and convenience.
👉 Looking for a home with the primary bedroom on the main floor? Explore our collection!
Indeed, it eliminates the need for stairs while increasing privacy. The primary bedroom offers a calm and well-proportioned space. It also includes a walk-in closet and a private bathroom.
This bathroom features a bathtub, a separate shower, and a double vanity. As a result, you benefit from a complete and functional space designed for everyday comfort.

Chatelain (#3162) – Drummond House Plans
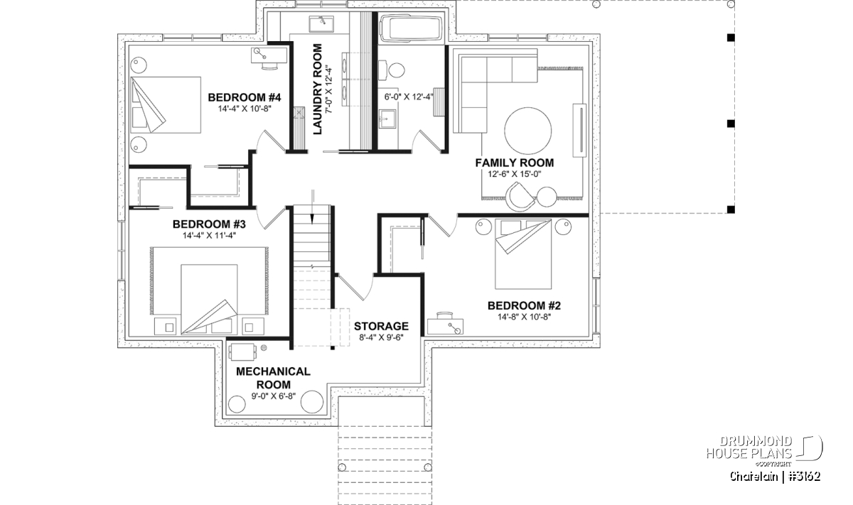
An optional finished basement for added flexibility
The Chatelain model also includes an optional finished basement of 1,370 sq. ft. This space can be customized based on your priorities.
For example, you can add:
- Three additional bedrooms
- A family room
- A bathroom
- A laundry room with chute
- Storage spaces
The optional finished basement offers multiple layout possibilities based on your needs.

Chatelain (#3162) – Drummond House Plans
As a result, this bright single-story house easily adapts to growing families. It also allows you to spread construction costs over time.
The covered terrace extends the living space and enhances outdoor living.

Chatelain (#3162) – Drummond House Plans
Who is this bright single-story house for?
The Chatelain (#3162) plan is ideal for:
- Families looking for a bright single-story house
- Buyers wanting a main-floor primary suite
- Projects requiring flexible living space
- Homeowners aiming to maximize natural light
Additionally, this type of single-story home fits perfectly with modern and flexible lifestyles.
People who like this home also search for:
✔ Single-story house plans with 2 bedrooms
✔ Single-story house plans with garage
✔ Farmhouse house plans
✔ Bright house plans with large windows
✔ Modern house plans
A smart choice for your budget
Building a bright single-story house is an important investment. However, certain decisions can help optimize costs. For example, choosing an optional finished basement allows you to build in phases. This way, you can better manage your overall budget. If you’re exploring similar options, take a look at our collections of house plans with finished basements and walk-out basement house plans designed for flexibility and long-term value.
✅ FAQ – Chatelain (#3162) Single-Story House
Why choose a single-story house?
A single-story home offers simple, stair-free living, making it ideal for families of all ages.
Is the basement required to be finished?
No. The finished basement is optional, offering greater financial flexibility.
What are the benefits of a main-floor primary suite?
It provides more comfort, privacy, and easier day-to-day living.
Why choose a bright home?
A bright home improves well-being, reduces artificial lighting needs, and increases perceived value.
Take the next step for your home project
Explore the Chatelain (#3162) plan and view all photos
Modify this plan with one of our residential design experts, get your free quote!
Discover our online custom home plan service tailored to your needs
In summary, the Chatelain (#3162) is a bright single-story house with a main-floor primary suite and optional finished basement, designed for comfort, flexibility, and long-term living.
