The European house plan Lauzon (#3626) combines timeless architecture, modern comfort, and bright living spaces designed for family living. Its generous proportions, natural light, and refined details create a warm and balanced home environment. With over 2,700 sq. ft. across the main floor and second story, every space in this home has been carefully designed to maximize comfort, flow, and functionality. To explore how a home like the LAUZON can be fully adapted to your lifestyle, discover our guide on Custom House Plans Online.
Front Elevation of the European House Plan Lauzon (#3626)
The European house plan Lauzon (#3626) stands out with its elegant architecture and timeless design. Its balanced façade, stone accents, and board and batten siding create refined curb appeal inspired by classic European homes.

This European house plan combines timeless architectural inspiration with modern family comfort.
An Elegant Façade and Dramatic Entry
From the moment you arrive, the combination of stone accents and Board & Batten siding delivers refined curb appeal. Then, the impressive two-story entryway immediately stands out thanks to its height and natural light. Decorative arches subtly define the main transitions and reinforce the architectural character of this classic house plan. The spacious single-car garage connects directly to the mudroom and pantry, making everyday routines smoother and more practical.
Rear View of the European House Plan Lauzon (#3626)
The Lauzon (#3626) showcases an elegant rear façade designed for comfortable outdoor living. Large windows and a spacious covered terrace extend the living space toward the backyard.

✅ Why Choose the House Plan Lauzon (#3626)
• Timeless house plan design with elegant architectural character
• 3 to 5 bedrooms, including a spacious primary suite
• 2.5 to 3.5 bathrooms, including a private ensuite and Jack-and-Jill bath
• Over 2,700 sq. ft. across two levels for generous family living space
• Bright open-concept layout, perfect for entertaining
• 24’ x 11’ covered terrace for year-round outdoor living
• Optional 1,530 sq. ft. basement for additional flexibility
Bright Spaces Designed for Family Living
The main floor welcomes you with a bright open-concept layout combining the kitchen, dining area, and living room. The kitchen features a large central island, walk-in pantry, coffee station, and generous storage. Meanwhile, the living room stands out thanks to its cathedral ceiling and cozy fireplace, creating a warm and inviting atmosphere. At the back of the home, the dining area opens directly onto the 24’ x 11’ covered terrace, perfect for outdoor living in every season. In addition, the large mudroom near the garage entrance includes built-in cabinetry and a practical bench. It connects directly to the pantry, which is especially convenient when unloading groceries. You will also find a spacious main-floor laundry room with a utility sink and abundant storage, plus a functional powder room.
Main Floor Plan of the European House Plan Lauzon (#3626)
The Lauzon (#3626) features a bright and functional main floor designed for family living. The open-concept layout connects the kitchen, dining area, and living room while providing direct access to the covered terrace. If you’re considering adapting this layout to better fit your needs, learn more about our Custom House Plans Online service.

The main floor of this house plan offers bright open living spaces designed for comfort and everyday family life.
Second Floor Plan of the European House Plan Lauzon (#3626)
Upstairs, the spacious primary suite features a cathedral ceiling, a reading nook, and a private bathroom. It also includes an impressive 8’2’’ x 15’8’’ walk-in closet, providing exceptional storage space. Two secondary bedrooms complete the sleeping area. They share a Jack-and-Jill bathroom, which works perfectly for family living. Altogether, the layout reflects a thoughtful family house plan designed for comfort and privacy.
Second floor plan – European house plan Lauzon (#3626) featuring a spacious primary suite and two secondary bedrooms.
The second floor of this house plan provides a functional layout designed for comfort and family living.
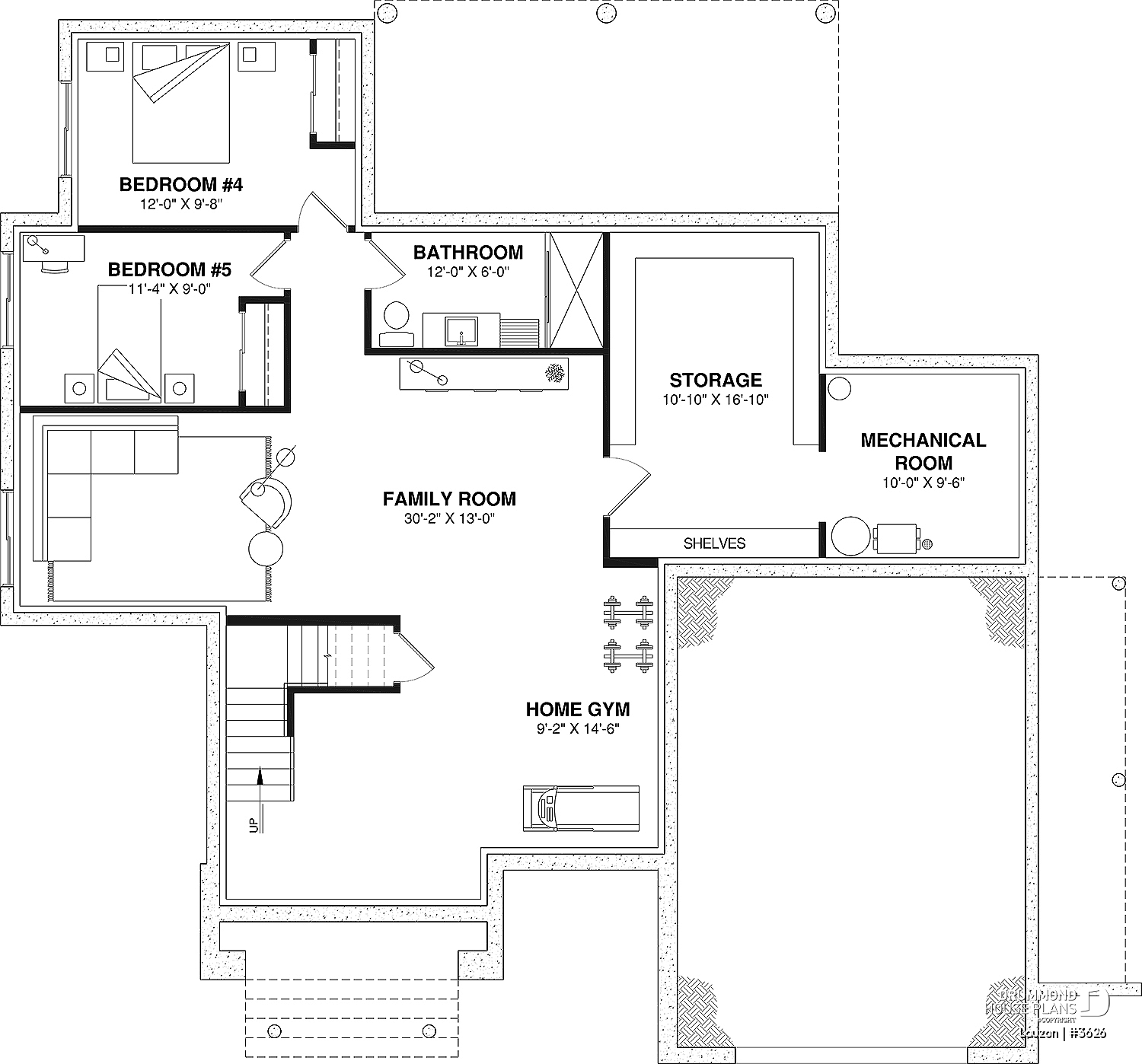
Optional Basement Plan of the European House Plan Lauzon (#3626)
The optional finished basement adds over 1,530 sq. ft., transforming the lower level into a versatile living area.
• Two additional bedrooms for a possible total of five bedrooms
• Spacious family room for relaxing together
• Dedicated home gym area
• Full bathroom
• Large storage space and mechanical room

The optional basement of this house plan provides flexible living spaces including bedrooms, a family room, and recreational areas.
European House Plans Inspired by Timeless Architecture
European house plans are appreciated for their elegant proportions, balanced façades, and refined architectural details. Homeowners often choose this style for its timeless charm and welcoming atmosphere. A well-designed house plan blends classic architectural inspiration with bright interior spaces and modern comfort. The Lauzon (#3626) perfectly reflects this tradition with its dramatic entry, balanced façade, and functional family layout.
Related European House Plans and Styles
Homeowners searching for a European house plan often explore several related architectural styles. These homes share elegant proportions and timeless materials.
Popular searches related to this design include:
• classic house plans
• European style house plans
• French country house plans
• traditional home plans
• luxury European house plans
If you appreciate the Lauzon (#3626), you may also enjoy exploring similar European-inspired home designs.
✅ Frequently Asked Questions
Is the Lauzon (#3626) suitable for families?
Yes. This house plan offers open living areas, three upstairs bedrooms, and generous family-friendly spaces.
How many bedrooms are possible?
Up to five bedrooms when the optional finished basement is included.
Is the terrace covered?
Yes. The rear terrace is fully covered and measures 24’ x 11’.
Is the basement included?
The unfinished basement is included. The finished basement is available as an option.
What makes this plan unique?
Its European architectural style, dramatic two-story entry, and collaboration with *Sarah Lauzon.
Discover all the possibilities of the LAUZON (#3626) house plan
What if the LAUZON plan was the starting point for your future home? Discover how to take the next step.
Explore the full LAUZON house plan and discover every detail of this elegant family home.
Would you like to customize the LAUZON house plan? Contact your regional Drummond House Plans office.
Prefer a more farmhouse-inspired design? Discover the CHARLIE house plan (#3634)
++++++++++
*This plan was created through an inspiring collaboration with Sarah Lauzon. Together, we designed a classic house plan that is functional, elegant, and welcoming.

