The Maple Way 3 model embodies a modern and highly functional vision of today’s family home. It is designed for families seeking comfort, natural light, and everyday versatility. This single-story farmhouse home focuses on smart, efficient space planning. As a result, it offers a seamless living experience adapted to both current and future needs.
A generous and well-optimized living area
The Maple Way 3 farmhouse plan (#3287-V2) offers approximately 3,170 square feet of finished living space. This area is divided between the main floor and a fully finished basement. From the moment you enter, 9-foot ceilings enhance the sense of openness and comfort. Additionally, the kitchen and living room feature an impressive 16-foot-2-inch cathedral ceiling. Thus, natural light becomes a defining element of the interior experience.

A functional entryway and flexible rooms
First, the entry opens onto a walk-in style mudroom that is practical and well organized. An integrated bench provides a convenient spot for bags, boots, or daily essentials. Nearby, a home office offers exceptional flexibility for modern lifestyles. Thanks to a built-in closet, this space may serve as a bedroom, nursery, or playroom. Next, a secondary bedroom and a full shower bathroom complete this functional area. This layout is ideal for children, guests, or remote work.

A private and thoughtfully designed primary suite
The Maple Way primary suite prioritizes privacy and everyday comfort. It features a spacious walk-in closet and a complete private bathroom. The farmhouse style bathroom includes a bathtub, a separate shower, and dual sinks. In addition, the primary bedroom provides direct access to the rear terrace. As a result, daily routines feel calm, intuitive, and well balanced.

Bright and welcoming shared living spaces
At the rear of the main floor, you’ll find the shared living areas. The kitchen features a large central island and a walk-in pantry, highly valued by families. It opens naturally onto the dining room on one side and the living room on the other. The living room fireplace remains visible from the kitchen, creating a warm atmosphere. During winter months, this feature becomes a natural gathering point. Abundant windows flood these spaces with natural light.

A terrace adaptable to your lifestyle
An uncovered rear terrace is included in the original design of the plan. However, this outdoor space is not included in the construction cost estimate. It is also possible to add a covered terrace based on your preferences. Additionally, a garage may be easily integrated into the existing plan. These modifications can be completed through one of Drummond House Plans’s 31 offices.

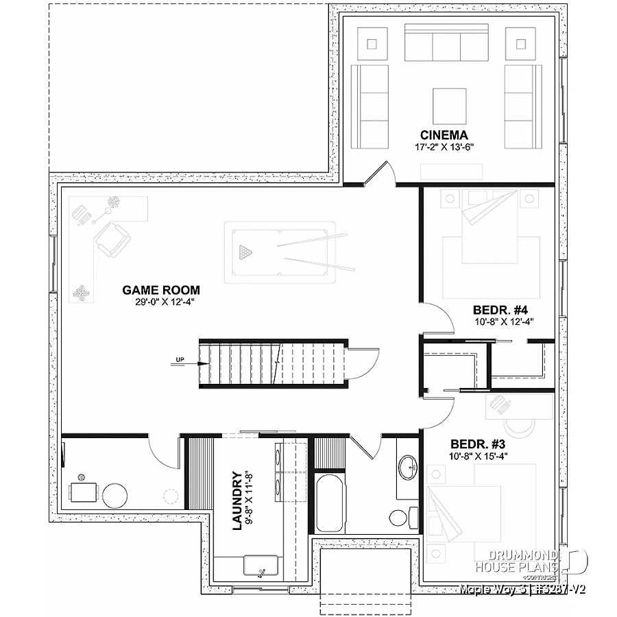
A family-friendly basement with endless possibilities
The finished basement of Maple Way 3 was designed with family living in mind. It includes two additional bedrooms and a full bathroom. You’ll also find a game room or large family room on this level. A home theater, laundry room, and mechanical room complete the space. Thus, every family member can enjoy their own dedicated area.

💡 Important Note
To receive the finished basement as shown, this option must be selected in your shopping cart.
Otherwise, the basement will be delivered unfinished at no additional cost.
Maple Way 3 and its available versions
The Maple Way house plan collection offers three visually similar exterior designs, each featuring distinct floor plan layouts. While the architectural style remains consistent, every version is thoughtfully designed to suit different lifestyles and family needs. In addition, many customer-built photos are available, allowing you to explore real-life interpretations of the Maple Way homes. Be sure to take a look and get inspired by how homeowners have brought this collection to life.
Why choose Maple Way 3
In conclusion, Maple Way 3 stands out for the versatility of its spaces. This model adapts easily to the different stages of family life. It combines farmhouse style, modern functionality, and abundant natural light. Ultimately, it is an evolving home designed to support your lifestyle long term.
Browse More Modern Farmhouse Plans Here >
Do You Love This Model But Want to Make Modifications? Get Your Free Quote Here!



