Heat lovers, of travel and RVs, we have the collection you need! The single-family home collection with garages that can accommodate an RV is now available on our website.
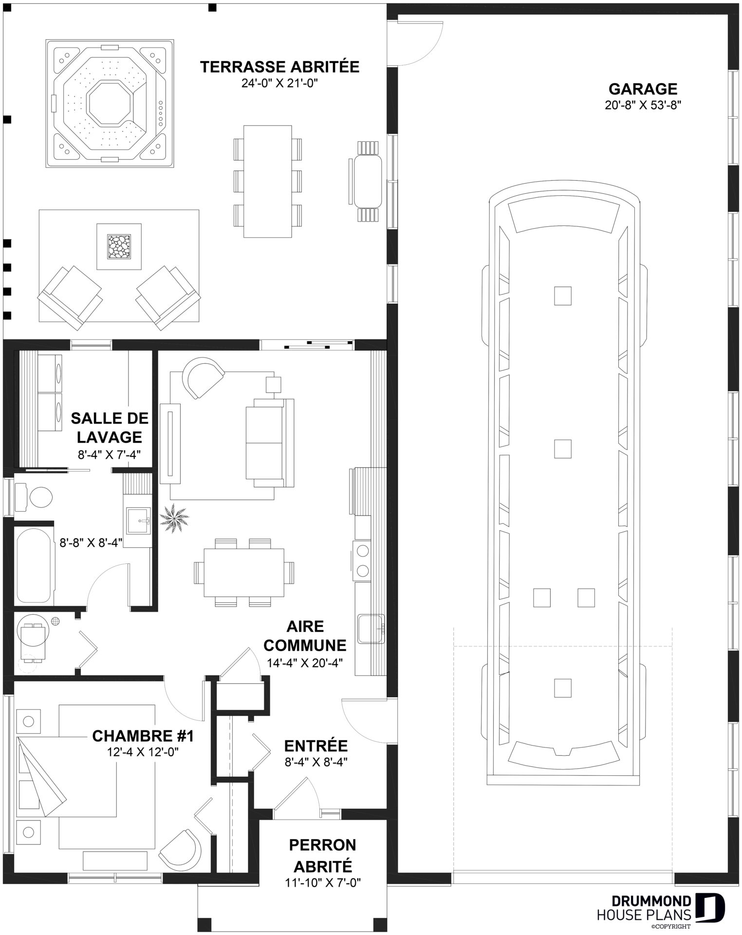
A hybrid home that can have a RV garage or a bonus living area
The idea was originally thought up by the company call Laforest Habitation Durable after which we developed different plans for our collection. You will find several styles with several possible layouts to meet different needs.
Together we created a revolutionary concept: a collection of hybrid concept homes. Let me explain: these are house plans that are flexibale and are designed to store your RV as well as offer you the possibility of living there comfortably all year round, even in winter.
These plans are designed to adapt to your changing needs. You will be able to plan your RV trips according to your evolving budget, without weather constraints.
The concept allows for a flexible transition between a standard home and that of having recreational vehicle (RV) space. You will find unparalleled comfort with the possibility of welcoming family and friends as well as easily converting the existing space according to your evolving needs. Enjoy unparalleled comfort in the living area and the possibility to host get togethers and parties in the hybrid/flexible space.
Multiple possibilities : from RV garage to living area
The concept of Hybrid home plans allows you to maximize the value of your investment. Should your needs change in the future, your home can be converted into a standard home with minimal costs, saving you the hassle of selling or moving. Your loved ones will also be able to enjoy this space during your travels, and it can also be converted into a standard home or chalet for them down the road. You may even decide to rent the space during your extended absences, thus offering a return on your investment.
Imagine a home that becomes flexible according to your needs and has the capacity of evolving with you. Thanks to our unique concept, enjoy the tranquility without a single compromise.



